『自力式壓力控制調節閥』專業生產廠家,由正鋼自主生產的【調節閥】質量可靠、價格合理、售后服務完善。『自力式壓力控制調節閥』適用于各種輕重工業及樓宇管道。正鋼品質,全球共享!【調節閥】廣泛應用于:化工、石化、石油、造紙、采礦、電力、液化氣、食品、制藥、給排水、市政、機械設備配套、電子工業,城建等領域。
自力式壓力控制調節閥概述
ZZY型自力式壓力控制調節閥無需外加能源,利用被調介質自身能量為動力源,引入執行機構控制閥芯位置,改變兩端的壓差和流量,使閥前(或閥后)壓力穩定。具有動作靈敏,密封性好,壓力設定點波動小等優點,廣泛應用于氣體、液體及蒸汽介質減壓穩壓或泄壓穩壓的自動控制。本系列產品有單座(ZZYP)、套筒(ZZYM)、雙座(ZZYN)三種結構:執行機構有薄膜式、活塞式二種:作用型式有減壓用閥后壓力調節(B型)和泄壓用閥前壓力調節(K型)。產品公稱壓力等級有PN16、40、64;閥體口徑范圍DN20~300;泄漏量等級有II級、IV級和VI能三檔;流量特性為快開;壓力分段調節從15~250MPa。可按需要組合滿足用戶工況要求。
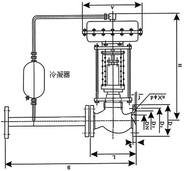
閥前調節壓力(K)型、閥后調節壓力(B)型 安裝典型:



ZZYP型自力式壓力調節閥是由閥體、閥座、閥芯、平衡彈簧等部件組成,是一種無需外加能源,利用被調節介質自身壓力變化來進行自動調節的閥門,是根據力學原理將被控介質引入執行機構產生力作用推動,控制閥芯元件上下位移達到自動調節,閥前或閥后恒壓或減壓的節能型產品。該產品最大的特點是能在無電、無氣的場所工作,壓力設定值在運行中可隨意調整。采用快開流量特性,動作靈敏、密封性能好,廣泛應用于石油、化工、電站、輕工、印染等各種工業設備中氣體、液體、蒸汽等介質壓力的自動控制。
【一】本系列產品執行機構有:薄膜式、活塞式兩種;作用形式有:閥前壓力調節(泄壓持壓型),閥后壓力調節(減壓穩壓型);附設隔溫冷凝罐可在≤350℃溫度下使用。根據不同的工況條件可選用不同的閥芯結構型式以及不同執行機構,以達到最佳的控制效果。
【二】主要零部件材質:
|
材料代號 |
C(WCB) |
P(304) |
R(316) |
|
主要 零
部件 |
閥體 |
WCB(ZG230-450) |
ZG1Cr18Ni9Ti(304) |
ZG1Cr18Ni12Mo2Ti(316) |
|
閥芯、閥座 |
1Cr18Ni9Ti(304) |
1Cr18Ni9Ti(304) |
1Cr18Ni12Mo2Ti(316) |
|
閥桿 |
1Cr18Ni9Ti |
1Cr18Ni9Ti |
1Cr18Ni12Mo2Ti |
|
膜片 |
丁睛橡膠、乙丙橡膠、氯丁膠、耐油橡膠 |
|
膜蓋 |
A3、A4鋼涂四氟乙烯 |
|
填料 |
聚四氟乙烯、柔性石墨 |
|
彈簧 |
60Si2Mn |
|
導向套 |
HPb59-1 |
【三】主要技術參數
|
公稱通徑DN(mm) |
20 |
25 |
32 |
40 |
50 |
65 |
80 |
100 |
125 |
150 |
200 |
|
額定流量系數Kv |
7 |
11 |
20 |
30 |
48 |
75 |
120 |
190 |
|
|
|
|
額定行程(mm) |
8 |
10 |
14 |
20 |
25 |
40 |
50 |
|
允許壓差(MPa) |
2.5 |
2.0 |
1.6 |
1.0 |
|
公稱壓力(MPa) |
1.6 4.0 6.4 |
|
流量特性 |
快開 |
|
壓力調節范圍(KPa) |
15~50、40~80、60~100、80~140、120~180、160~220、200~260、240~300、 280~350、330~400、380~450、430~500、480~560、540~620、600~700、680~800 780~900、880~1000、600~1500、1000~2500 |
|
調節精度(%) |
±5 |
|
工作溫度℃ |
液體≤120;氣體≤80;帶冷凝器和散熱片≤350(適用于高溫工況) |
|
適用介質 |
執水、氣體、蒸汽、低粘度介質 |
|
允許泄漏量 |
硬密封(L/h) |
單座≤10-4×閥額定容量(IV級);雙座、套筒≤5×10-3閥額定容量(II級 |
|
軟密封(ml/min) |
0.15 |
0.30 |
0.45 |
0.60 |
0.90 |
1.7 |
4.0 |
6.75 |
|
減壓比 |
最大 |
10 |
|
最小 |
1.25 |
注:壓力調節范圍可根據用戶要求進行制做
【四】ZZY型自力式壓力調節閥外形連接尺寸:
|
公稱通徑(DN) |
20 |
25 |
32 |
40 |
50 |
65 |
80 |
100 |
125 |
150 |
200 |
|
L |
PN16、40 |
150 |
160 |
180 |
200 |
230 |
290 |
310 |
350 |
400 |
480 |
600 |
|
PN64 |
230 |
230 |
260 |
260 |
300 |
340 |
380 |
430 |
500 |
550 |
650 |
|
B |
383 |
512 |
603 |
862 |
1023 |
1380 |
1800 |
|
H |
壓力 調節 范圍 MPa |
15~140 |
475 |
520 |
540 |
710 |
780 |
840 |
880 |
915 |
|
130~300 |
455 |
500 |
520 |
690 |
760 |
800 |
870 |
880 |
|
280~500 |
450 |
490 |
510 |
680 |
750 |
790 |
860 |
870 |
|
480~1000 |
445 |
480 |
670 |
740 |
780 |
850 |
860 |
|
600~1500 |
445 |
570 |
600 |
820 |
890 |
950 |
1000 |
|
1000~2500 |
445 |
570 |
600 |
820 |
890 |
950 |
1000 |
|
A |
壓力 調節 范圍 MPa |
15~140 |
φ280 |
φ308 |
|
130~300 |
φ230 |
|
280~1000 |
φ176 |
φ194 |
φ280 |
|
600~2500 |
φ85 |
φ96 |
|
導壓管接口螺紋 |
M16×15 |
【調節閥】由電動執行機構或氣動執行機構和調節閥兩部分組成。調節閥分電動調節閥、氣動調節閥和液動調節閥(自力式調節閥)等。調節閥用于調節介質的流量、壓力和液位。根據調節部位信號,自動控制閥門的開度,從而達到介質流量、壓力和液位的調節。【調節閥】通常分為直通單座式調節閥和直通雙座式調節閥兩種,后者具有流通能力大、不平衡辦小和操作穩定的特點,所以通常特別適用于大流量、高壓降和泄漏少的場合。流通能力Cv是選擇調節閥的主要參數之一,調節閥的流通能力的定義為:當調節閥全開時,閥兩端壓差為0.1MPa,流體密度為1g/cm3時,每小時流徑調節閥的流量數,稱為流通能力,也稱流量系數,以Cv表示,單位為t/h,液體的Cv值按下式計算。
自力式壓力控制調節閥產品承諾:
正鋼閥門一貫奉行誠信為企業的靈魂。本著提供高品質產品,竭誠為用戶服務的宗旨的經營原則,公司以滿足顧客需要為宗旨,愿意通過自己的努力共同促進雙方的合作,為顧客提供優質的產品和優良的服務,正鋼實行公開服務承諾。
1.正鋼所提供的產品從供貨之日起,在正常使用情況下,質保期為12-24個月,在質保期內,一律實行:保質、保量、包修、包換等。同時還提供終身免費咨詢服務。
2.用戶在運輸、裝卸、儲存、擅自拆卸產品或養護不當、自然災害等原因造成產品損壞、使用不當或在保修期外,本公司對產品實行終身技術服務,只收取配件的成本費。
3.用戶如發現產品質量問題或服務抱怨,正鋼收到用戶函電后,根據路程的遠近距離,本市城區2小時到達現場,外區域遇重大問題保證在24小時趕到現場并及時給予答復解決,確保用戶達到滿意。
4.公司承諾質保期滿后以最合理優惠價格快速地提供保養服務,并應買方要求派技術人員赴買方現場進行技術服務。
5.公司貨源充足,品種齊全,配件豐富,應急預案和措施嚴密,可以及時解決用戶臨時性的緊急需求。
6.產品使用過程中,用戶對產品質量、使用性能、改進意見或其他建設性建議等方面的反饋,正鋼會積極采納并改進,以便進一步提高產品質量,更好地回報用戶。
自力式壓力控制調節閥訂貨說明:
1.產品選型:如有指定型號標準,請直播銷售熱線咨詢價格,了解詳情!
2.技術支持:如沒有指定產品型號規格,請把工況要求、設計圖紙、技術規范,發送傳真或郵件至本公司。
3.參數說明:請提供通徑(DN),公稱壓力(Mpa),溫度(℃),連接方式(螺紋、法蘭、對夾等),驅動方式。
4.驅動方式:手動、蝸輪、氣動、電動等。
5.產品標準:國標GB、日標JIS、美標ANSI、德標DIN等。
6.報價確認:本公司提供報價清單及技術標準說明至客戶確認,在雙方技術各方面確認后再擬定合同。
7.質量標準:質量要求、質量標準、供方對質量負責的條件按國家有關質量標準。